1410 Grandview Ct - Grandview Heights
1410 Grandview Ct, Grandview Heights, Watertown, Wisconsin, United States 53098
Property Description
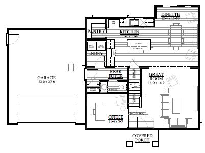
New Construction – Ready in January! The Hayward has a lot to offer any family! This 4 bedroom, 2.5 bathroom home with a 1st Floor Office offers a ton of space and even more in the walkout basement for your family’s future ideas. Huge kitchen with walk in pantry and luxury vinyl plank throughout the majority of the first floor, a first floor laundry room, along with an upgraded white trim package creates a homey feel. This house would be the perfect home for your family!
Basic Details
- Property Type:
- Home
- Listing Type:
- Sold
- Job Number:
- 21GH180
- Sales Sheet:
- Click Here
- Listing Agent:
- Mike Trudell
- Agent Phone:
- 262-719-9378
- Ready In:
- January
- Price:
- Call For Price
- Number of Floors:
- 2
- Bedrooms:
- 4
- Bathrooms:
- 2.5
- Garage Space:
- 2
- Square Footage:
- 2,029 Sqft
- Lot Area:
- 0.28 Acre
Features
- Heating System:
- Central
- Cooling System:
- Central
- Basement
Address Map
- Country:
- US
- State:
- WI
- City:
- Watertown
- Development:
- Grandview Heights
- Zipcode:
- 53098
- Street Number:
- 1410
- Street:
- Grandview Ct
- Floor Number:
- 0
- Longitude:
- W89° 18' 12.2''
- Latitude:
- N43° 12' 24.1''
Home
Sold
- Bedrooms:
- 4
- Bathrooms:
- 2.5
- Square Footage:
- 2,029 Sqft
Call For Price
Agent info
Property Rooms
-
Master Bedroom( 14x13 )
-
Bedroom( 12x11 )
-
Bedroom( 10x11 )
-
Bedroom( 10x10 )
-
Kitchen( 25x15 )
-
Living Room( 16x17 )
-
Study room( 11x10 )
Contact Agent





