913 Ridge Court - Hepp Heights
913 Ridge Court, Hepp Heights, Watertown, Wisconsin, United States 53094
Property Description
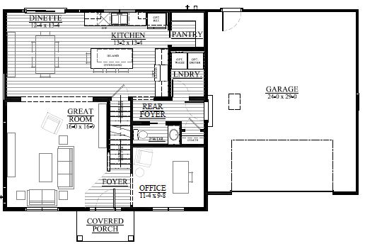
The Hayward has a lot to offer any family! This 4 bedroom, 2.5 bathroom home with a 1st Floor Office offers a ton of space and even more space in the basement with a roughed in bath and egress window for your family’s future ideas. Huge kitchen with walk in pantry, snack bar, and luxury vinyl plank throughout the majority of the first floor, a first floor laundry room, along with an upgraded white trim package creates a homey feel. This house would be the perfect home for your family!
Basic Details
- Property Type:
- Home
- Listing Type:
- Sold
- Job Number:
- 21HH53
- Sales Sheet:
- Click Here
- Listing Agent:
- Mike Trudell
- Agent Phone:
- 262-719-9378
- Ready In:
- March
- Price:
- Call For Price
- Number of Floors:
- 2
- Bedrooms:
- 4
- Bathrooms:
- 2.5
- Garage Space:
- 2
- Square Footage:
- 1,981 Sqft
- Lot Area:
- 0.24 Acre
Features
- Heating System:
- Central
- Cooling System:
- Central
- Basement
Address Map
- Country:
- US
- State:
- WI
- City:
- Watertown
- Development:
- Hepp Heights
- Zipcode:
- 53094
- Street Number:
- 913
- Street:
- Ridge Court
- Floor Number:
- 0
- Longitude:
- W89° 14' 32.8''
- Latitude:
- N43° 10' 29.7''
Home
Sold
- Bedrooms:
- 4
- Bathrooms:
- 2.5
- Square Footage:
- 1,981 Sqft
Call For Price
Agent info
Property Rooms
-
Master Bedroom( 13x13 )
-
Bedroom( 12x11 )
-
Bedroom( 10x11 )
-
Bedroom( 10x10 )
-
Living Room( 16x17 )
-
Kitchen( 25x13 )
-
Laundry room( 5x7 )
-
Study room( 11x10 )
Contact Agent





