441 Conservancy Drive - Morse Farms Highlands
441 Conservancy Drive, Morse Farms Highlands, Johnson Creek, Wisconsin, United States 53038
Property Description
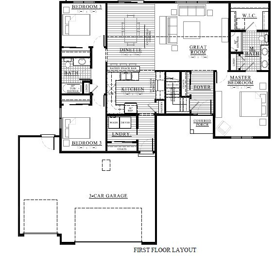
The Bridgeport offers features and amenities that are perfect for any family. The front foyer leads to the open concept main living area with cathedral ceilings. The kitchen is a chef’s dream with Quartz countertops, a large pantry and Steel Grey Cabinets. The master suite includes a WIC and private bathroom with a dual vanity. A 3 car garage and even more space in the basement with 2 windows for your future expansion ideas. Exterior stone around the front of this home, shake details and window grids add to the curb appeal. Come enjoy Morse Farms Highlands on the edge of the village with easy access to Milwaukee and Madison.
Basic Details
- Property Type:
- Home
- Listing Type:
- Sold
- Job Number:
- 22MFH62
- Sales Sheet:
- Click Here
- Listing Agent:
- Mike Trudell
- Agent Phone:
- 262-719-9378
- Ready In:
- August
- Price:
- Call For Price
- Number of Floors:
- 1
- Bedrooms:
- 3
- Bathrooms:
- 2
- Garage Space:
- 3
- Square Footage:
- 1,648 Sqft
- Lot Area:
- 0.28 Acre
Features
- Heating System:
- Central
- Cooling System:
- Central
- High Ceiling
Address Map
- Country:
- US
- State:
- WI
- City:
- Johnson Creek
- Development:
- Morse Farms Highlands
- Zipcode:
- 53038
- Street Number:
- 441
- Street:
- Conservancy Drive
- Floor Number:
- 1
- Longitude:
- W89° 12' 52.9''
- Latitude:
- N43° 4' 50.3''
Neighborhood
- Shopping Center 5 Minutes
- Cinema 5 Minutes
- School 5 Minutes
Home
Sold
- Bedrooms:
- 3
- Bathrooms:
- 2
- Square Footage:
- 1,648 Sqft
Call For Price
Agent info
Property Rooms
-
Master Bedroom( 13x16 )
-
Bedroom( 11x10 )
-
Bedroom( 11x11 )
-
Living Room( 18x16 )
-
Kitchen( 12x26 )
Contact Agent





