315 Crestview Lane - Brookestone Meadows
315 Crestview Lane, Brookestone Meadows, Lake Mills, Wisconsin, United States 53551
Property Description
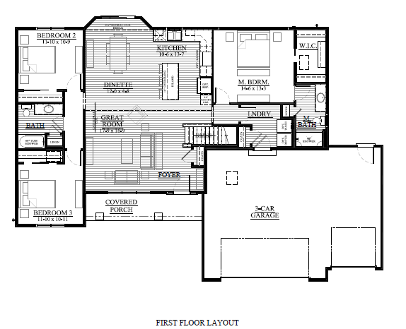
The Washburn offers 3 beds and 2 baths in this split ranch plan with a spacious great room . This home offers an open kitchen with a large island and pantry. The master suite includes a WIC and private bath. Upgrades include Georgian satin nickel door handles, Chrome plumbing fixture in kitchen, Quartz kitchen countertops, Steel Grey cabinets and a white trim package. The unfinished basement with egress window and 3 car garage provide more opportunities for future expansion! Come enjoy beautiful Lake Mills’ Brookestone Meadows subdivision on the edge of the city with a rural feeling. Give Dee Welper a call for more information.
Basic Details
- Property Type:
- Home
- Listing Type:
- Sold
- Job Number:
- 23BM212
- Listing Agent:
- Deanne Welper
- Agent Phone:
- (262) 352-1654
- Price:
- Call For Price
- Bedrooms:
- 3
- Bathrooms:
- 2
- Garage Space:
- 3
- Square Footage:
- 1,615 Sqft
- Lot Area:
- 0.29 Acre
Features
- Heating System:
- Central
- Cooling System:
- Central
- Basement
- Kitchen:
- Semi Equipped
- High Ceiling
Appliances
- Microwave
- Dishwasher
Address Map
- Country:
- US
- State:
- WI
- City:
- Lake Mills
- Development:
- Brookestone Meadows
- Zipcode:
- 53551
- Street Number:
- 315
- Street:
- Crestview Lane
- Postal Code:
- 53551
- Floor Number:
- 0
- Longitude:
- W89° 7' 13.9''
- Latitude:
- N43° 4' 14''
Home
Sold
- Bedrooms:
- 3
- Bathrooms:
- 2
- Square Footage:
- 1,615 Sqft
Call For Price
Agent info
Property Rooms
-
Bedroom( 14'x13' )
-
Bedroom( 12'x11' )
-
Bedroom( 12'x11' )
-
Kitchen( 11'x14' )
-
Dining Room( 12'x12' )
-
Living Room( 18'x17' )
Contact Agent






