214 Trail View Lane - Tyranena Point
214 Trail View Lane, Tyranena Point, Lake Mills, Wisconsin, United States 53551
Property Description
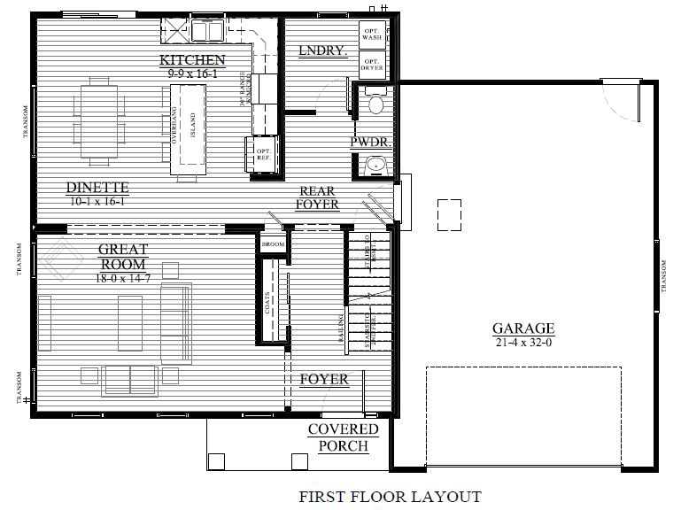
Our Alexandria features a floor plan which is perfect for any family! You will feel at home the minute you enter the foyer which leads to the large great room. The kitchen features an island perfect for entertaining and a large dinette area with plenty of room for a large dining set. Upgrades include white perimeter kitchen cabinets, with boardwalk island cabinets, quartz counters in the kitchen, upgraded plumbing & light fixture package. The master suite offers a private bath & walk-in closet and the main floor has a laundry room & powder room off of the garage. With a sliding window in the basement, this allows for limitless ideas for expansion! Give Deanne Welper a call for more information!
Basic Details
- Property Type:
- Home
- Listing Type:
- Sold
- Job Number:
- 23TP30
- Listing Agent:
- Deanne Welper
- Agent Phone:
- (262) 352-1654
- Ready In:
- January
- Price:
- Call For Price
- Bedrooms:
- 4
- Bathrooms:
- 2.5
- Garage Space:
- 2
- Square Footage:
- 1,951 Sqft
- Lot Area:
- 0.24 Acre
Features
- Heating System:
- Central
- Cooling System:
- Central
- Basement
- Kitchen:
- Semi Equipped
Appliances
- Microwave
- Dishwasher
Address Map
- Country:
- US
- State:
- WI
- City:
- Lake Mills
- Development:
- Tyranena Point
- Zipcode:
- 53551
- Street Number:
- 214
- Street:
- Trail View Lane
- Postal Code:
- 53551
- Floor Number:
- 0
- Longitude:
- W89° 5' 16.1''
- Latitude:
- N43° 3' 34.7''
Home
Sold
- Bedrooms:
- 4
- Bathrooms:
- 2.5
- Square Footage:
- 1,951 Sqft
Call For Price
Agent info
Property Rooms
-
Bedroom( 13'x15' )
-
Bedroom( 10'x10' )
-
Bedroom( 11'x11' )
-
Bedroom( 11'x11' )
-
Kitchen( 10'x16' )
-
Dining Room( 10'x16' )
-
Living Room( 18'x15' )
Contact Agent





