905 Ridge Court - Hepp Heights
905 Ridge Court, Hepp Heights, Watertown, Wisconsin, United States 53094
Property Description
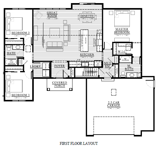
The Burton offers features and amenities that are perfect for any family. The front foyer leads to the open concept main living area with cathedral ceilings. The kitchen is a chef’s dream with large island and Hi-Def laminate countertops and Boardwalk Cabinets. The master suite includes a WIC and private bathroom. A 2.5 car garage and even more space in the basement with a full walk-out exposure with a patio door for your future expansion ideas. Exterior stone on the front of this home, board and batten details and window grids add to the curb appeal. Come enjoy Hepp Heights subdivision with a pleasant rural feeling. Please Call Ryan Prellwitz for More Information!
Basic Details
- Property Type:
- Home
- Listing Type:
- Sold
- Job Number:
- 23HH49
- Listing Agent:
- Ryan Prellwitz
- Agent Phone:
- (715) 661-0014
- Price:
- Call For Price
- Bedrooms:
- 3
- Bathrooms:
- 2
- Garage Space:
- 2.5
- Square Footage:
- 1,627 Sqft
- Lot Area:
- 0.35 Sqft
Features
- Heating System:
- Central
- Cooling System:
- Central
- Basement
- Kitchen:
- Semi Equipped
- High Ceiling
Appliances
- Microwave
- Dishwasher
Address Map
- Country:
- US
- State:
- WI
- City:
- Watertown
- Development:
- Hepp Heights
- Zipcode:
- 53094
- Street Number:
- 905
- Street:
- Ridge Court
- Floor Number:
- 0
- Longitude:
- W89° 14' 36.7''
- Latitude:
- N43° 10' 29.6''
Home
Sold
- Bedrooms:
- 3
- Bathrooms:
- 2
- Square Footage:
- 1,627 Sqft
Call For Price
Agent info
Property Rooms
-
Bedroom( 15'x13' )
-
Bedroom( 11'x11' )
-
Bedroom( 11'x11' )
-
Kitchen( 12'x13' )
-
Dining Room( 12'x10' )
-
Living Room( 15'x20' )
Contact Agent





