1721 Arthurs Pass - Morgan Station
1721 Arthurs Pass, Morgan Station, Oconomowoc, Wisconsin, United States 53066
Property Description
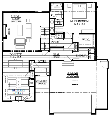
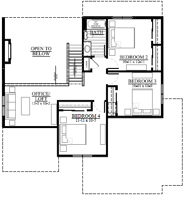
Introducing your dream home: Brand new construction, two-story elegance in the prestigious Oconomowoc Morgan Station Subdivision. This masterpiece boasts modern luxury with quartz countertops, lofted office overlooking the first floor, and a spacious 2.5-car garage. Step into your sanctuary with a stunning First Floor Master Suite featuring a generous Walk-in closet!!! The front elevation showcases a harmonious blend of stone and vinyl shake, adding to the home’s curb appeal. Don’t miss the opportunity to make this new construction home yours today! Please Call/Text/Email Mike Trudell for more information on this beautiful home, see contact info below!
Basic Details
- Property Type:
- Home
- Listing Type:
- Sold
- Job Number:
- 23MS24
- Listing Agent:
- Mike Trudell
- Agent Phone:
- (262) 719-9378
- Price:
- Call For Price
- Number of Floors:
- 2
- Bedrooms:
- 4
- Bathrooms:
- 2.5
- Garage Space:
- 2.5
- Square Footage:
- 2,031 Sqft
- Lot Area:
- 0.27 Acre
Features
- Heating System:
- Central
- Cooling System:
- Central
- Basement
- Kitchen:
- Semi Equipped
- Fireplace
Appliances
- Microwave
- Dishwasher
Address Map
- Country:
- US
- State:
- WI
- City:
- Oconomowoc
- Development:
- Morgan Station
- Zipcode:
- 53066
- Street Number:
- 1721
- Street:
- Arthurs Pass
- Floor Number:
- 0
- Longitude:
- W89° 27' 46.2''
- Latitude:
- N43° 5' 2''
Home
Sold
- Bedrooms:
- 4
- Bathrooms:
- 2.5
- Square Footage:
- 2,031 Sqft
Call For Price
Agent info
Property Rooms
-
Bedroom( 14'x13' )
-
Bedroom( 11'x13' )
-
Bedroom( 11'x11' )
-
Bedroom( 12'x10' )
-
Kitchen( 13'x20' )
-
Living Room( 16'x16' )
Contact Agent




