320 E. Washington Avenue - Conservancy Place
320 E. Washington Avenue, Conservancy Place, Jefferson, Wisconsin, United States 53549
Property Description
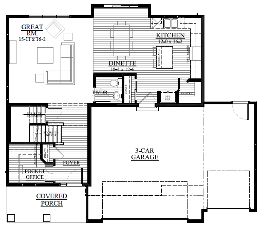
Welcome to your dream home in charming Jefferson! This new construction beauty, the Cedarburg Model, offers an inviting open concept design with a pocket office and fourth bedroom on the second level. Enjoy the kitchen island, walk-in pantry, 3-car garage and the convenience of a Master suite with a Walk-in Closet. This home layout features second floor laundry for your ease and comfort. The front elevation is extremely inviting with its columns and features! Egress window in the basement for future expansion. Don’t miss out on this opportunity to call this beautiful house your new forever home! Please Call/Text/Email Deanne Welper for more information, see contact information below!
Basic Details
- Property Type:
- Home
- Listing Type:
- Sold
- Job Number:
- 24CP18
- Listing Agent:
- Deanne Welper
- Agent Phone:
- (262) 352-1654
- Price:
- Call For Price
- Number of Floors:
- 2
- Bedrooms:
- 4
- Bathrooms:
- 2.5
- Garage Space:
- 3
- Square Footage:
- 1,900 Sqft
- Lot Area:
- 0.21 Acre
Features
- Heating System:
- Central
- Cooling System:
- Central
- Basement
- Kitchen:
- Semi Equipped
Appliances
- Microwave
- Dishwasher
Address Map
- Country:
- US
- State:
- WI
- City:
- Jefferson
- Development:
- Conservancy Place
- Zipcode:
- 53549
- Street Number:
- 320
- Street:
- E. Washington Avenue
- Floor Number:
- 0
- Longitude:
- W89° 11' 47.5''
- Latitude:
- N43° 0' 5.2''
Home
Sold
- Bedrooms:
- 4
- Bathrooms:
- 2.5
- Square Footage:
- 1,900 Sqft
Call For Price
Agent info
Property Rooms
-
Bedroom( 13x13 )
-
Bedroom( 11x11 )
-
Bedroom( 11x11 )
-
Bedroom( 11x10 )
-
Kitchen( 22x16 )
-
Living Room( 16x16 )
Contact Agent















