432 Chapel Hill Drive - Morse Farms Highland
432 Chapel Hill Dr, Morse Farms Highland, Johnson Creek, Wisconsin, United States 53038
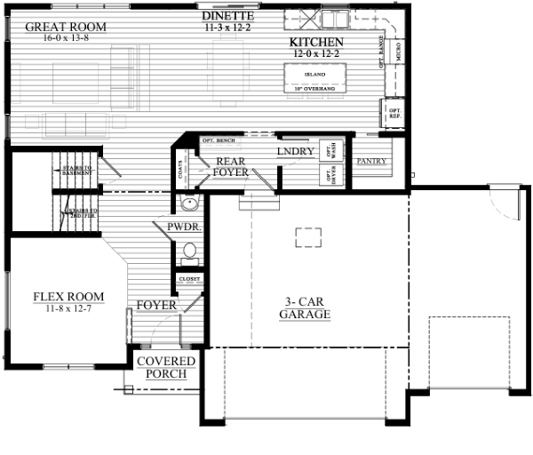
Step into luxury and comfort with this gorgeous home in
Morse Farms Highland. Boasting Boardwalk-colored
cabinetry, the kitchen and living areas are designed with both
style and functionality in mind. Enjoy the first-floor flex room,
offering the perfect space for a home office, study, or playroom. The
open-concept kitchen features a spacious island and a large pantry,
making it a dream for culinary enthusiasts. With 4 bedrooms and 2.5
baths, there’s ample space for your family to grow and relax. At 2,164 sq. ft.,
you’ll find a perfect balance of cozy spaces and expansive living areas. Set on
a .34-acre lot (Lot 49), enjoy outdoor activities and privacy. Plus, the 3-car garage
provides plenty of room for vehicles and storage. This home is a true retreat—don’t
miss out! Come enjoy Morse Farms Highland, the midway point between Madison and
Milwaukee! Contact Ryan Prellwitz for more information!
- Property Type:
- Home
- Listing Type:
- Sold
- Job Number:
- 25MFH49
- Listing Agent:
- Ryan Prellwitz
- Price:
- Call For Price
- Number of Floors:
- 2
- Bedrooms:
- 4
- Bathrooms:
- 2.5
- Garage Space:
- 3
- Square Footage:
- 2,164 Sqft
- Lot Area:
- 0.34 Acre
- Heating System:
- Central
- Cooling System:
- Central
- Basement
- Kitchen:
- Semi Equipped
- Microwave
- Dishwasher
- Country:
- US
- State:
- WI
- City:
- Johnson Creek
- Development:
- Morse Farms Highland
- Zipcode:
- 53038
- Street Number:
- 432
- Street:
- Chapel Hill Dr
- Floor Number:
- 0
- Longitude:
- W89° 13' 4.7''
- Latitude:
- N43° 4' 53.1''
- Bedrooms:
- 4
- Bathrooms:
- 2.5
- Square Footage:
- 2,164 Sqft
-
Living Room( 14x16 )
-
Dining Room( 11x12 )
-
Kitchen( 12x12 )
-
Extra Room( 12x13 )
-
Master Bedroom( 16x14 )
-
Bedroom( 14x10 )
-
Bedroom( 12x11 )
-
Bedroom( 12x13 )








