612 Maple St - Jones Park
612 Maple St, Jones Park, Fort Atkinson, Wisconsin, United States 53538
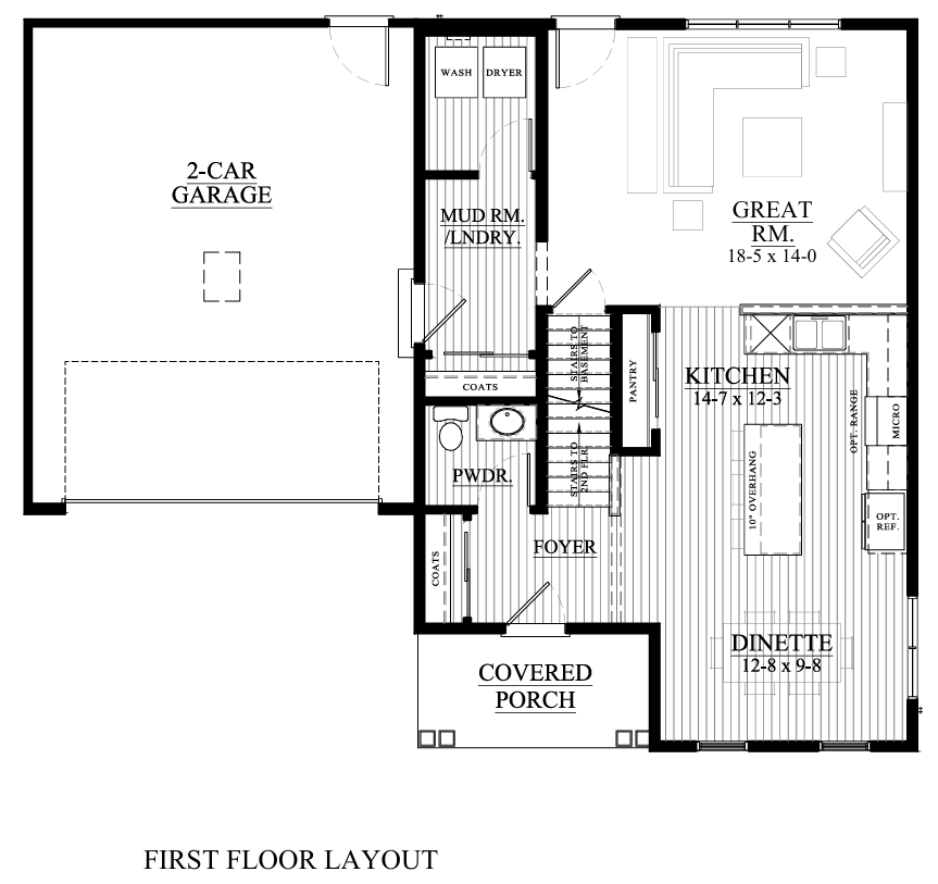
Property Description
Welcome to your dream home in Fort
Atkinson! This stunning new construction offers
1,697 sq. ft. of thoughtfully designed living space,
featuring pecan-colored cabinets, a spacious kitchen
island, and an open layout perfect for entertaining. With
3 bedrooms, 2.5 baths, and a large master suite with walk
in closet, there’s room for everyone to feel right at home.
Enjoy evenings on the covered front porch, plus the
convenience of a 2-car garage and a manageable .20-acre lot.
Modern design meets comfort in this beautiful move-in-ready home!
Call/Text/Email Deanne Welper, see contact info below!
Basic Details
- Property Type:
- Home
- Listing Type:
- For Sale
- Job Number:
- 25JP2
- Sales Sheet:
- Click Here
- Listing Agent:
- Deanne Welper
- Agent Phone:
- (262) 352-1654
- Ready In:
- February
- Price:
- $389,900
- Number of Floors:
- 2
- Bedrooms:
- 3
- Bathrooms:
- 2.5
- Garage Space:
- 2
- Square Footage:
- 1,697 Sqft
- Lot Area:
- 0.20 Acre
Features
- Heating System:
- Central
- Cooling System:
- Central
- Basement
- Kitchen:
- Semi Equipped
Appliances
- Microwave
- Dishwasher
Address Map
- Country:
- US
- State:
- WI
- City:
- Fort Atkinson
- Development:
- Jones Park
- Zipcode:
- 53538
- Street Number:
- 612
- Street:
- Maple St
- Postal Code:
- 53538
- Floor Number:
- 0
- Longitude:
- W89° 9' 37.7''
- Latitude:
- N42° 55' 17.7''
Home
For Sale
- Bedrooms:
- 3
- Bathrooms:
- 2.5
- Square Footage:
- 1,697 Sqft
$389,900
Agent info
Property Rooms
-
Living Room( 19x14 )
-
Kitchen( 15x12 )
-
Dining Room( 13x10 )
-
Bedroom( 11x10 )
-
Bedroom( 11x10 )
-
Master Bedroom( 13x15 )
Contact Agent





