1725 Arthurs Pass - Morgan Station
1725 Arthurs Pass, Morgan Station, Oconomowoc, Wisconsin, United States 53066
Property Description
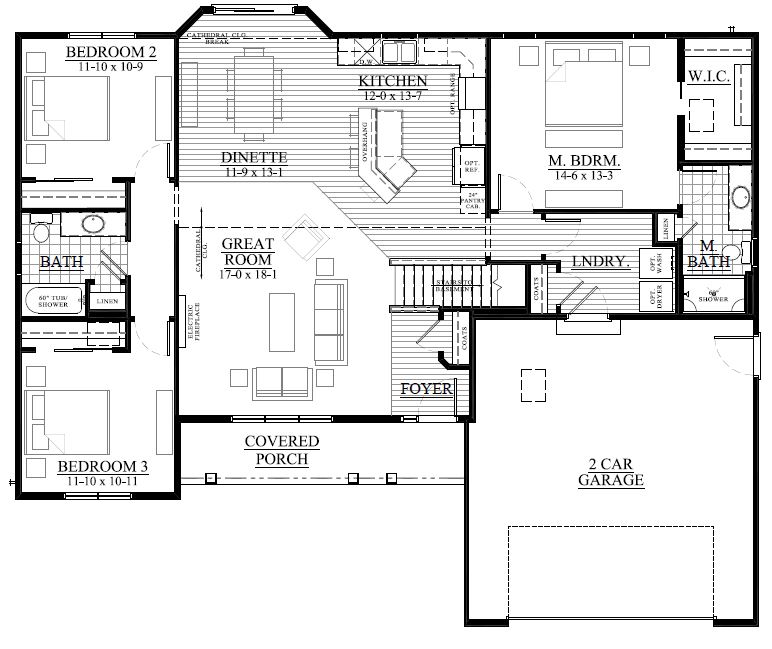
The Washburn offers 3 beds and 2 baths in this split ranch plan with a spacious great room and a linear fireplace creates a beautiful focal point to the room. This home offers an open kitchen with a raised snack bar and pantry. The master suite includes a WIC and private bath. Upgrades include Quartz countertops and LVP flooring, a white trim package and solid core interior doors. The partial exposure in the unfinished basement allows for future expansion with lots of light pouring in from two large windows.
Basic Details
- Property Type:
- Home
- Listing Type:
- Sold
- Job Number:
- 21MS25
- Sales Sheet:
- Click Here
- Listing Agent:
- Mike Trudell
- Agent Phone:
- 262-719-9378
- Ready In:
- May
- Price:
- Call For Price
- Number of Floors:
- 1
- Bedrooms:
- 3
- Bathrooms:
- 2
- Garage Space:
- 2
- Square Footage:
- 1,644 Sqft
- Lot Area:
- 0.26 Acre
Features
- Heating System:
- Central
- Cooling System:
- Central
- Fireplace
- High Ceiling
Address Map
- Country:
- US
- State:
- WI
- City:
- Oconomowoc
- Development:
- Morgan Station
- Zipcode:
- 53066
- Street Number:
- 1725
- Street:
- Arthurs Pass
- Floor Number:
- 0
- Longitude:
- W89° 27' 50.2''
- Latitude:
- N43° 5' 2.1''
Neighborhood
- Park 1 Minutes
Home
Sold
- Bedrooms:
- 3
- Bathrooms:
- 2
- Square Footage:
- 1,644 Sqft
Call For Price
Agent info
Property Rooms
-
Master Bedroom( 15x13 )
-
Bedroom( 12x11 )
-
Bedroom( 12x11 )
-
Kitchen( 23x13 )
-
Living Room( 17x18 )
Contact Agent




