1451 Tyranena Terrace - Tyranena Point
1451 Tyranena Terrace, Tyranena Point, Lake Mills, Wisconsin, United States 53551
Property Description
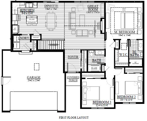
New Construction – Ready in June! The Bryant offers features that are perfect for any family. The open kitchen with island and pantry flows nicely into the Dinette and Great Room with a beautiful electric fireplace. The master suite includes a walk in closet and private bath-room. A main floor laundry, upgraded cabinetry, and white trim package throughout, are just a few features of this beautiful home. The basement with a patio door and two large windows has a roughed in full bath, making it very easy to add a home office or add an additional bedroom. Located in Tyranena Point for an easy commute to Madison.
Basic Details
- Property Type:
- Home
- Listing Type:
- Sold
- Job Number:
- 22TP13
- Sales Sheet:
- Click Here
- Listing Agent:
- Dee Welper
- Agent Phone:
- 262-352-1654
- Ready In:
- June
- Price:
- Call For Price
- Number of Floors:
- 1
- Bedrooms:
- 3
- Bathrooms:
- 2
- Garage Space:
- 2
- Square Footage:
- 1,510 Sqft
- Lot Area:
- 0.23 Acre
Features
- Heating System:
- Central
- Cooling System:
- Central
- Basement
- Fireplace
- High Ceiling
Address Map
- Country:
- US
- State:
- WI
- City:
- Lake Mills
- Development:
- Tyranena Point
- Zipcode:
- 53551
- Street Number:
- 1451
- Street:
- Tyranena Terrace
- Floor Number:
- 1
- Longitude:
- W89° 6' 12.7''
- Latitude:
- N43° 5' 10.4''
Home
Sold
- Bedrooms:
- 3
- Bathrooms:
- 2
- Square Footage:
- 1,510 Sqft
Call For Price
Agent info
Property Rooms
-
Master Bedroom( 14x14 )
-
Bedroom( 11x11 )
-
Bedroom( 12x11 )
-
Living Room( 15x18 )
-
Kitchen( 20x13 )
-
Laundry room( 6x7 )
Contact Agent




