Loos Homes
Sort Option
- Property Type
- Add date
- Featured
- Listing
Grid
List
525 Pheasant Trail - Morning Side Estates
525 Pheasant Trail, Morning Side Estates, Deerfield, Wisconsin, United States 53531
3Bedroom(s)
2Bathroom(s)
54Picture(s)
1,928Sqft
Ready for your family in March, the covered porch entryway opens to the spacious Kitchen with cathedral ceilings in this popular Vienna ranch! Loaded with desirable features, such as kitchen with center island and pantry, two-tone cabinets and Quartz countertop, a split master suite with 2 WIC's, upgraded plumbing and lighting fixtures, and an abundance of windows for natural light.
Call For Price
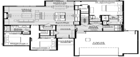
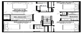
1721 Arthurs Pass - Morgan Station
1721 Arthurs Pass, Morgan Station, Oconomowoc, Wisconsin, United States 53066
4Bedroom(s)
2.5Bathroom(s)
6Picture(s)
2,031Sqft
Introducing your dream home: Brand new construction, two-story elegance in the prestigious Oconomowoc Morgan Station Subdivision. This masterpiece boasts modern luxury with quartz countertops, lofted office overlooking the first floor, and a spacious 2.5-car garage.
Call For Price
412 Midge Street - Morse Farms Highland
412 Midge Street, Morse Farms Highland, Johnson Creek, Wisconsin, United States 53038
4Bedroom(s)
2.5Bathroom(s)
6Picture(s)
2,029Sqft
Introducing your dream home! Nestled in the desirable Morse Farms Highland Subdivision, this stunning two-story new construction offers the perfect blend of elegance and convenience. Featuring a large kitchen island and walk-in pantry, the open-concept living space exudes luxury. The spacious Master Bedroom boasts a walk-in closet, providing ample storage for your wardrobe.
Call For Price
1580 Woodside Drive - Morgan Station
1580 Woodside Drive, Morgan Station, Oconomowoc, Wisconsin, United States 53066
3Bedroom(s)
2Bathroom(s)
5Picture(s)
1,705Sqft
Introducing the Vienna Model, your ideal new ranch-style home in the picturesque Morgan Station Subdivision of Oconomowoc. Experience the beauty of open-concept living with abundant natural light, courtesy of 3 large windows in the great room with an electric fireplace.
Call For Price
328 E. Washington Avenue - Conservancy Place
328 E. Washington Avenue, Conservancy Place, Jefferson, Wisconsin, United States 53549
3Bedroom(s)
2Bathroom(s)
5Picture(s)
1,510Sqft
Introducing your dream home! Nestled in the desirable city of Jefferson, this stunning ranch-style new construction offers the perfect blend of elegance and convenience. Featuring two-tone cabinets, kitchen island, pantry and cathedral ceilings, the open-concept living space exudes luxury. The spacious Master Bedroom boasts a walk-in closet, providing ample storage for your wardrobe.
Call For Price
1411 Beacon Drive - Grandview Heights
1411 Beacon Drive, Grandview Heights, Watertown, Wisconsin, United States 53098
3Bedroom(s)
2Bathroom(s)
5Picture(s)
1,768Sqft
Nestled in the picturesque Grandview Heights Subdivision, an exciting opportunity awaits in the form of a brand new “Benton” home. This beautiful property combines modern design with thoughtful features that will make it the perfect place to call home.
Call For Price
1444 Tyranena Terrace - Tyranena Point
1444 Tyranena Terrace, Tyranena Point, Lake Mills, Wisconsin, United States 53551
3Bedroom(s)
2Bathroom(s)
5Picture(s)
1,615Sqft
Welcome to your dream home in the Tyranena Point Subdivision of Lake Mills! This new construction beauty, the Washburn Model, offers an inviting open concept design with a flood of natural light, coupled with cathedral vaulted ceilings. Indulge in the modern elegance of Quartz Countertops and the convenience of a Master suite with a Walk-in Closet.
Call For Price
1596 Bluestem Trail - Prairie Creek Reserve
1596 Bluestem Trail, Prairie Creek, Oconomowoc, Wisconsin, United States 53066
3Bedroom(s)
2Bathroom(s)
5Picture(s)
1,851Sqft
The Stratford offers 3 beds and 2 baths in this split ranch plan with a spacious great room including a gas fireplace! This home offers an open kitchen with a large island and pantry. The master suite includes a WIC and private bath. Upgrades include Matte Black door handles, plumbing fixtures, Quartz kitchen countertops, Steel Grey cabinets and a white trim package.
Call For Price
915 Ridge Court - Hepp Heights
915 Ridge Court, Hepp Heights, Watertown, Wisconsin, United States 53094
3Bedroom(s)
2Bathroom(s)
6Picture(s)
1,649Sqft
The Baymont offers features and amenities that are perfect for any family. The front foyer leads to the open concept main living area with cathedral ceilings. The kitchen is a chef’s dream with peninsula and Hi-Def laminate countertops and Boardwalk Cabinets. The master suite includes a WIC and private bathroom.
Call For Price
420 Crestview Lane - Brookstone Meadows
420 Crestview, Brookstone Meadows, Lake Mills, Wisconsin, United States 53551
3Bedroom(s)
2Bathroom(s)
6Picture(s)
1,640Sqft
The Stratford offers 3 beds and 2 baths in this split ranch plan with a spacious great room including cathedral ceilings! This home offers an open kitchen with a large island and pantry. The master suite includes a WIC and private bath. Upgrades include light fixtures, Quartz kitchen countertops, Boardwalk cabinets and a white trim package.
Call For Price
771 S. Dewey Avenue - Conservancy Place
771 S. Dewey Avenue, Conservancy Place, Jefferson, Wisconsin, United States 53549
3Bedroom(s)
2Bathroom(s)
5Picture(s)
1,618Sqft
The Weston offers amenities that are perfect for any family. The open kitchen and dining area flows nicely into the Great Room. The master suite includes a walk in closet and private bathroom with a dual vanity. A main floor laundry and upgraded Steel Grey cabinetry, Lyndon solid core interior doors, and Sleek plumbing fixtures in the kitchen, are just a few features of this beautiful home.
Call For Price
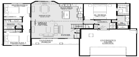
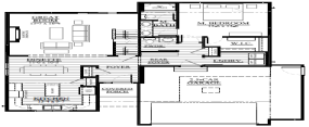
320 E. Washington Avenue - Conservancy Place
320 E. Washington Avenue, Conservancy Place, Jefferson, Wisconsin, United States 53549
4Bedroom(s)
2.5Bathroom(s)
17Picture(s)
1,900Sqft
Welcome to your dream home in charming Jefferson! This new construction beauty, the Cedarburg Model, offers an inviting open concept design with a pocket office and fourth bedroom on the second level. Enjoy the kitchen island, walk-in pantry, 3-car garage and the convenience of a Master suite with a Walk-in Closet. This home layout features second floor laundry for your ease and comfort.
Call For Price
























































































